Cargando contenido…

Recientemente registrados Recientemente actualizados
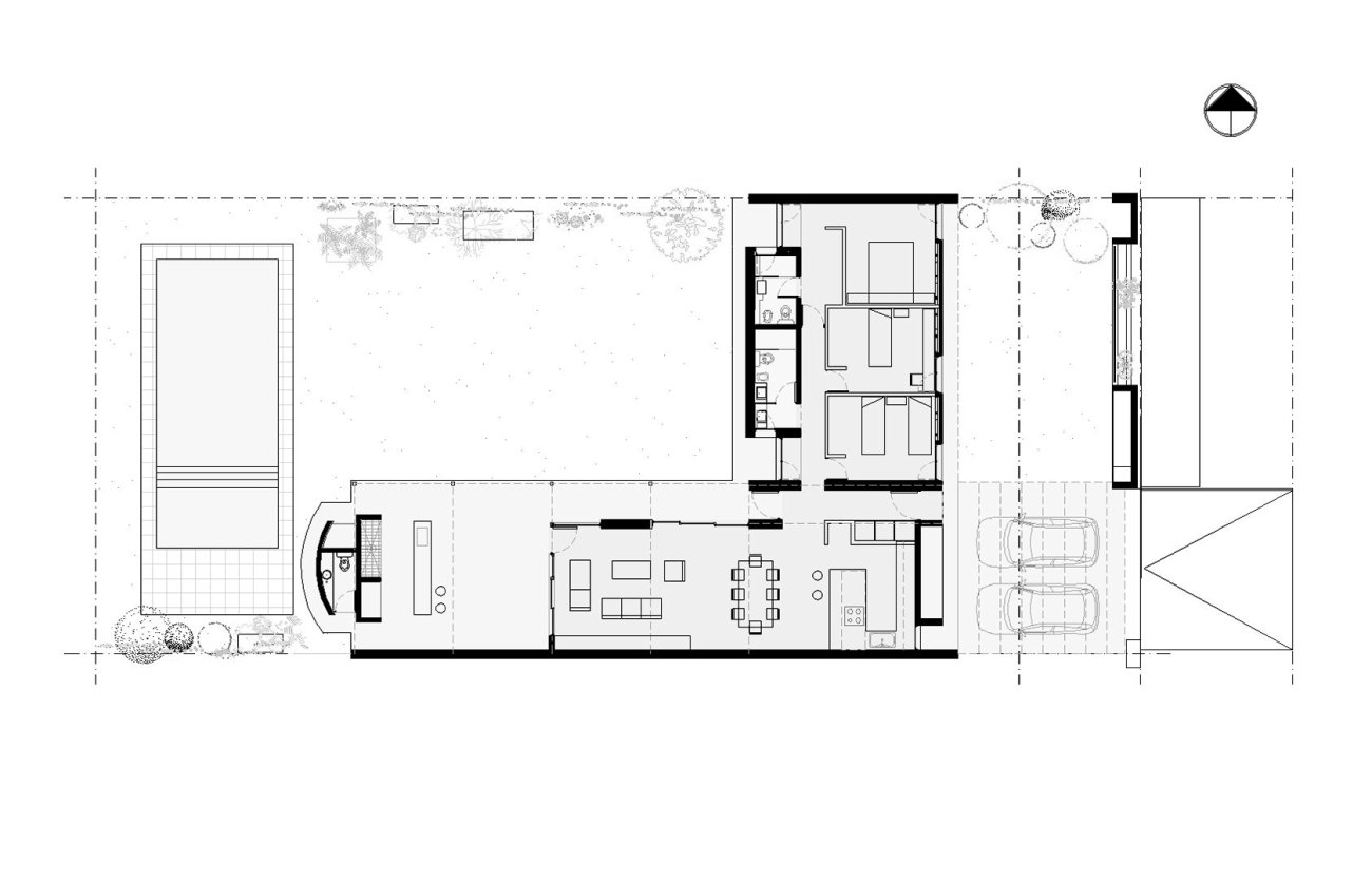
Portada Zavanella - Kuri

Casa DM2

Vivienda unifamiliar
Sistema constructivo tradicional. Mampostería portante
Funes, Santa Fe
Imagen del perfil
Imagen del perfil
Imagen del perfil
Imagen del perfil
Imagen del perfil
Imagen del perfil
Imagen del perfil
Imagen del perfil
Imagen del perfil
Imagen del perfil
Imagen del perfil
Imagen del perfil
Imagen del perfil
Zavanella - Kuri

Zavanella - Kuri

Matrícula 7908

ZK Arquitectura

Ladrillera / Madera / Moderno / Diseño de Interiores / Contemporáneo / Restauración / Sustentable / 3D / Amoblamientos / Ampliación / Diseño de exteriores / Paisajismo / Fotografía / Obra nueva / Piscinas / Proyecto / Proyecto/Diseño / Reciclado de Vivienda / Refacción / Reforma / Remodelación / Vivienda / Croquis / BIM / Fotografía de Arquitectura / Legajo ejecutivo de obras / Pliego Ejecutivo / Anteproyecto / Administración / Asesoramiento / Consultoría / Constructoras / contratistas / Cálculos / Cómputo y presupuesto / Diseño / Dirección de obras / Diseño / Proyecto / Planos / Diseño Urbano / Ejecución y montaje / Fotografía de obra / Project

Estudio de Arquitectura desde 2014 

Mi experiencia

¡Hola! ¿En qué puedo ayudarte?

ABRIR CHAT